Skip To Content

254 Dora Dr

Killeen, TX 76542
  • $335,330
  • STATUS: Active
  • ID#: 4173939
UPDATED: 63 min ago
$335,330
  • 3
    BEDS
  • 0.17
    ACRES
  • 2
    BATHS
  • 1
    1/2 BATHS
  • 1,998
    SQFT
  • $168
    $/SQFT
Neighborhood:
Type:
Single-Family Home
Built:
2025
County:
Area:

School Information

Elementary School:
Middle School:
High School:
School District:
Property listed by Eleonora Santana of Nexthome Tropicana Realty: (254) 616-1850.

Description

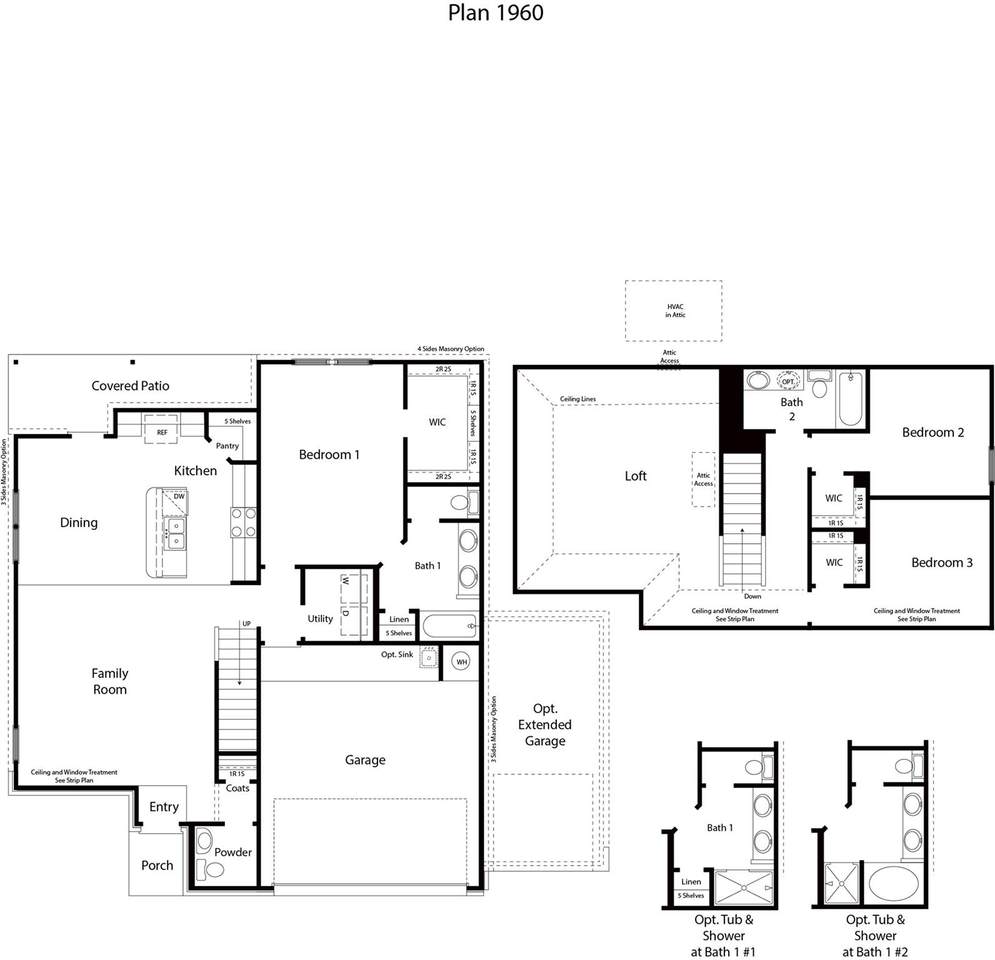
Come see our spacious Sterling floorplan in Killeen, Texas at Turnbo Ranch Traditions, with 3 bedrooms and 2.5 bathrooms. This carefully designed floorplan spans at an approximate 1,998 sq. ft. When you enter the home, you'll be greeted by an open-concept first floor with a great room, dining area, and kitchen. The modern kitchen, with flat panel birch cabinetry, granite countertops, decorative tile backsplash, and stainless-steel appliances, is sure to please. Walking through the home, you can enter the 2-car garage near the laundry room. The first floor also offers access to the covered patio. The first floor features the primary bedroom that has an attached primary bathroom with a walk-in shower that has two different tub and shower options. The primary bedroom also offers a spacious walk-in closet for your belongings. Heading up the stairs to the second floor, you're greeted by the loft. The loft not only leads to the two secondary bedrooms but also includes a secondary bathroom with a bathtub and shower combo. The secondary bedrooms have plenty of space for storage with the walk-in closet and cozy carpeting. Talk to us today to find out how you can make the Sterling your new home.

Monthly Payment Calculator



© 2025 Austin Board of REALTORS® (alternatively, from ACTRIS). All information provided is deemed reliable but is not guaranteed and should be independently verified. The Austin Board of REALTORS®, ACTRIS and their affiliates provide the MLS and all content therein “AS IS” and without any warranty, express or implied.The information provided is for consumers' personal, non-commercial use and may not be used for any purpose other than to identify prospective properties consumers may be interested in purchasing. Data last updated: 2025-11-18T19:01:41.8.

MLS Grid  logoBased on information submitted to the MLS GRID as of 2025-11-18T19:01:41.8 (date and time MLS GRID Data was obtained). All data is obtained from various sources and may not have been verified by broker or MLS GRID. Supplied Open House Information is subject to change without notice. All information should be independently reviewed and verified for accuracy. Properties may or may not be listed by the office/agent presenting the information. Click here for MLS GRID DMCA Notice
www.austintexasresidence.com/homes/167929731
Print Image

254 Dora Dr Killeen, TX 76542

  • Price: $335,330
  • Status: Active
  • On Site: Days
  • Updated: 63 min ago
  • ID#: 4173939
3
Beds
2
Baths
1
½ Baths
0.17
Acres
1,998
SQFT
$168
$/SQFT
2025
Built
Neighborhood:
Turnbo Ranch
County:
Bell
Area:
Killeen
Elementary School:
Alice W Douse
Middle School:
Dr. Jimmie Don Aycok
High School:
Chapparral
School District:
Killeen ISD
Property Description
Come see our spacious Sterling floorplan in Killeen, Texas at Turnbo Ranch Traditions, with 3 bedrooms and 2.5 bathrooms. This carefully designed floorplan spans at an approximate 1,998 sq. ft. When you enter the home, you'll be greeted by an open-concept first floor with a great room, dining area, and kitchen. The modern kitchen, with flat panel birch cabinetry, granite countertops, decorative tile backsplash, and stainless-steel appliances, is sure to please. Walking through the home, you can enter the 2-car garage near the laundry room. The first floor also offers access to the covered patio. The first floor features the primary bedroom that has an attached primary bathroom with a walk-in shower that has two different tub and shower options. The primary bedroom also offers a spacious walk-in closet for your belongings. Heading up the stairs to the second floor, you're greeted by the loft. The loft not only leads to the two secondary bedrooms but also includes a secondary bathroom with a bathtub and shower combo. The secondary bedrooms have plenty of space for storage with the walk-in closet and cozy carpeting. Talk to us today to find out how you can make the Sterling your new home.
Exterior Features

Attached Garage YN Yes Covered Spaces 3 Direction Faces NW Exterior Features See Remarks Fencing Privacy Foundation Details Slab Garage YN Yes Levels Two Lot Features Sprinklers In FrontSprinkler - Side Yard Other Structures None Parking Features AttachedGarageGarage Faces Front Patio And Porch Features Rear Porch Roof Shingle View None Waterfront Features None Waterfront YN No

Interior Features

Appliances CooktopDishwasherMicrowave Cooling Central Air Fireplaces Total 0 Flooring Tile Heating Central Interior Features Ceiling Fan(s)Primary Bedroom on MainWalk-In Closet(s) Laundry Location Main Level Main Level Bedrooms 1 Num Dining 1 Num Living 1 Num Other Level Beds 2 Rooms Primary Bedroom (Main Level See Remarks) Primary Bathroom (Main Level See Remarks) Kitchen (Main Level See Remarks) Window Features See Remarks

Property Features

Accessibility Features See Remarks Additional Parcels YN No Association Fee 42 Association Fee Frequency Monthly Association Fee Includes See Remarks Association YN Yes Community Features See Remarks Estimated Taxes 0 Fema Flood Plain No Horse YN No Listing Terms CashConventionalFHAVA Loan New Construction YN No Pool Features None Pool Private YN No Property Condition Under Construction Property Sub Type Single Family Residence Sewer Public Sewer Special Listing Conditions Standard Utilities Electricity AvailableSewer Available Water Source Public



© 2025 Austin Board of REALTORS® (alternatively, from ACTRIS). All information provided is deemed reliable but is not guaranteed and should be independently verified. The Austin Board of REALTORS®, ACTRIS and their affiliates provide the MLS and all content therein “AS IS” and without any warranty, express or implied.The information provided is for consumers' personal, non-commercial use and may not be used for any purpose other than to identify prospective properties consumers may be interested in purchasing. Data last updated: 2025-11-18T19:01:41.8.

MLS Grid  logoBased on information submitted to the MLS GRID as of 2025-11-18T19:01:41.8 (date and time MLS GRID Data was obtained). All data is obtained from various sources and may not have been verified by broker or MLS GRID. Supplied Open House Information is subject to change without notice. All information should be independently reviewed and verified for accuracy. Properties may or may not be listed by the office/agent presenting the information. Click here for MLS GRID DMCA Notice
 
https://bt-photos.global.ssl.fastly.net/austin/1280_boomver_1_4173939-2.jpg https://bt-photos.global.ssl.fastly.net/austin/1280_boomver_1_4173939-2.jpg https://bt-photos.global.ssl.fastly.net/austin/1280_boomver_1_4173939-2.jpg
Logo
Watters International
3307 Northland Dr, Ste 100
Austin TX, 78731
Property listed by Eleonora Santana of Nexthome Tropicana Realty: (254) 616-1850.