Skip To Content

13312 Mancos Shale Rd

Mustang Ridge, TX 78610
  • $309,990
  • STATUS: Active
  • ID#: 1667261
UPDATED: 7 min ago
$309,990
  • 4
    BEDS
  • 0.11
    ACRES
  • 2
    BATHS
  • 1
    1/2 BATHS
  • 1,952
    SQFT
  • $159
    $/SQFT
Neighborhood:
Type:
Single-Family Home
Built:
2025
County:

School Information

Elementary School:
Middle School:
High School:
School District:
Property listed by Dave Clinton of D.R. Horton, AMERICA'S Builder: (512) 345-4663.

Description

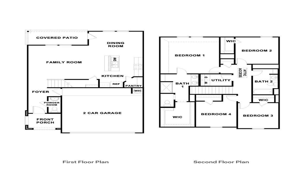
UNDER CONSTRUCTION - EST COMPLETION NOW!!!!!!!!!!!!!!!!!!!!! Photos are representative of plan and may vary as built. The Grace is one of our two-story floorplans featured in our Durango community in Mustang Ridge, TX. The Grace is a two-story floorplan offering 1,937 sq. ft. of living space across 4 bedrooms and 2.5 bathrooms. As you enter the home through foyer, you'll see the convenient half bath next to the stairwell. Continuing into the home you will enter the wide-open living space. The family room flows into the dining area and kitchen which features quartz countertops, stainless steel appliances, and a large kitchen island. This space offers tons of natural lighting and looks out to the spacious covered patio. Upstairs you will find all of the bedrooms, giving the home a more private feel. The main bedroom, bedroom 1, offers a large walk-in closet and bathroom that includes two sinks and a walk-in shower. This home comes included with a professionally designed landscape package and a full irrigation system as well as our Home is Connected base package that offers devices such as a Video Doorbell, Deako Smart Light Switch, a Honeywell Thermostat, and more.

Monthly Payment Calculator



© 2025 Austin Board of REALTORS® (alternatively, from ACTRIS). All information provided is deemed reliable but is not guaranteed and should be independently verified. The Austin Board of REALTORS®, ACTRIS and their affiliates provide the MLS and all content therein “AS IS” and without any warranty, express or implied.The information provided is for consumers' personal, non-commercial use and may not be used for any purpose other than to identify prospective properties consumers may be interested in purchasing. Data last updated: 2025-11-18T10:59:45.11.

MLS Grid  logoBased on information submitted to the MLS GRID as of 2025-11-18T10:59:45.11 (date and time MLS GRID Data was obtained). All data is obtained from various sources and may not have been verified by broker or MLS GRID. Supplied Open House Information is subject to change without notice. All information should be independently reviewed and verified for accuracy. Properties may or may not be listed by the office/agent presenting the information. Click here for MLS GRID DMCA Notice
www.austintexasresidence.com/homes/167748060
Print Image

13312 Mancos Shale Rd Mustang Ridge, TX 78610

  • Price: $309,990
  • Status: Active
  • On Site: Days
  • Updated: 7 min ago
  • ID#: 1667261
4
Beds
2
Baths
1
½ Baths
0.11
Acres
1,952
SQFT
$159
$/SQFT
2025
Built
Neighborhood:
Durango
County:
Travis
Area:
Mustang Ridge
Elementary School:
Creedmor
Middle School:
Del Valle
High School:
Del Valle
School District:
Del Valle ISD
Property Description
UNDER CONSTRUCTION - EST COMPLETION NOW!!!!!!!!!!!!!!!!!!!!! Photos are representative of plan and may vary as built. The Grace is one of our two-story floorplans featured in our Durango community in Mustang Ridge, TX. The Grace is a two-story floorplan offering 1,937 sq. ft. of living space across 4 bedrooms and 2.5 bathrooms. As you enter the home through foyer, you'll see the convenient half bath next to the stairwell. Continuing into the home you will enter the wide-open living space. The family room flows into the dining area and kitchen which features quartz countertops, stainless steel appliances, and a large kitchen island. This space offers tons of natural lighting and looks out to the spacious covered patio. Upstairs you will find all of the bedrooms, giving the home a more private feel. The main bedroom, bedroom 1, offers a large walk-in closet and bathroom that includes two sinks and a walk-in shower. This home comes included with a professionally designed landscape package and a full irrigation system as well as our Home is Connected base package that offers devices such as a Video Doorbell, Deako Smart Light Switch, a Honeywell Thermostat, and more.
Exterior Features

Attached Garage YN Yes Covered Spaces 2 Direction Faces NE Exterior Features Private Yard Fencing Back YardFencedWood Foundation Details Pillar/Post/PierSlab Garage YN Yes Levels Two Lot Features Back YardClearedCurbsFront YardInterior LotLandscapedLevelSprinkler - Back YardSprinklers In FrontSprinkler - Rain SensorSprinkler - Side YardTrees-Small (Under 20 Ft) Other Structures Garage(s) Parking Features AttachedGarage Faces FrontInside Entrance Patio And Porch Features CoveredFront PorchPatio Roof CompositionShingle View None Waterfront Features None Waterfront YN No

Interior Features

Appliances Built-In RangeDishwasherDisposalExhaust FanMicrowavePlumbed For Ice MakerRangeRNGHDStainless Steel Appliance(s)Vented Exhaust FanGas Water Heater Cooling Central Air Fireplaces Total 0 Flooring CarpetVinyl Heating CentralNatural Gas Interior Features High CeilingsGas Dryer HookupEntrance FoyerHigh Speed InternetKitchen IslandOpen FloorplanPantryRecessed LightingSmart HomeSmart ThermostatWalk-In Closet(s) Laundry Location Laundry RoomMain Level Main Level Bedrooms 0 Num Dining 1 Num Living 1 Num Other Level Beds 4 Rooms Primary Bedroom (Second Level Full BathWalk-In Closet(s)) Primary Bathroom (Second Level Quartz CountersWalk-in Shower) Kitchen (Main Level Center IslandQuartz CountersDining AreaPantryPlumbed for Icemaker) Window Features Double Pane WindowsLow Emissivity WindowsScreensVinyl Windows

Property Features

Accessibility Features None Additional Parcels YN No Association Fee 65 Association Fee Frequency Monthly Association Fee Includes Common Area Maintenance Association YN Yes Community Features Cluster MailboxHigh Speed InternetSidewalksStreet Lights Estimated Taxes 6197 Fema Flood Plain No Horse YN No Listing Terms CashConventionalFHATexas VetUSDA LoanVA Loan New Construction YN Yes Pool Features None Pool Private YN No Property Condition New Construction Property Sub Type Single Family Residence Sewer Private Sewer Special Listing Conditions Standard Utilities Cable AvailableElectricity AvailableInternet-FiberNatural Gas AvailablePhone AvailableSewer ConnectedUnderground UtilitiesWater Available Water Source Private



© 2025 Austin Board of REALTORS® (alternatively, from ACTRIS). All information provided is deemed reliable but is not guaranteed and should be independently verified. The Austin Board of REALTORS®, ACTRIS and their affiliates provide the MLS and all content therein “AS IS” and without any warranty, express or implied.The information provided is for consumers' personal, non-commercial use and may not be used for any purpose other than to identify prospective properties consumers may be interested in purchasing. Data last updated: 2025-11-18T10:59:45.11.

MLS Grid  logoBased on information submitted to the MLS GRID as of 2025-11-18T10:59:45.11 (date and time MLS GRID Data was obtained). All data is obtained from various sources and may not have been verified by broker or MLS GRID. Supplied Open House Information is subject to change without notice. All information should be independently reviewed and verified for accuracy. Properties may or may not be listed by the office/agent presenting the information. Click here for MLS GRID DMCA Notice
 
https://bt-photos.global.ssl.fastly.net/austin/orig_boomver_1_1667261-2.jpg https://bt-photos.global.ssl.fastly.net/austin/orig_boomver_1_1667261-2.jpg https://bt-photos.global.ssl.fastly.net/austin/orig_boomver_1_1667261-2.jpg
Logo
Watters International
3307 Northland Dr, Ste 100
Austin TX, 78731
Property listed by Dave Clinton of D.R. Horton, AMERICA'S Builder: (512) 345-4663.